
|
The Buzzard Roost Project -- Page 1 Photos
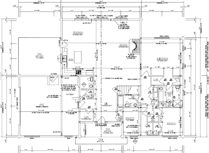
Custom Home — 8x8 Super Double Round Logs Near Mountain Home, AR — Delivery December 17, 2007
2151 SQFT Main Level Full Basement 665 SQFT Garage 462 SQFT of Porches 3 Bedrooms — 2 1/2 Baths
Home Completed Fall 2009 |
|
Authorized Sales Representatives for Kuhns Bros Log Homes |







