
|
Custom Plan Design Service |
|
Authorized Sales Representatives for Kuhns Bros Log Homes and Country Log Cabins |
|
If you have an idea in mind about the layout for your custom home or cabin, we can take your ideas and turn them into the floor plan that you desire. We can take your sketched ideas and draw a detailed floor plan that will start your planning process. We then take that plan to Kuhns Bros who will draw a “prospect plan” with floor plans and 2 elevations. You can then see exactly what your new home will look like. We charge a very nominal fee for this service which is a real bargain. Architect fees for start from scratch plans can run into the thousands of dollars.
See examples of some plans below and if you are interested in this service, you can scroll down to the bottom of the page for the fee schedule and place an order. |
|
We can start with something like this |

|
And turn it into This…….. |
|
Then Kuhns Bros turns it into THIS ===> Click |
|
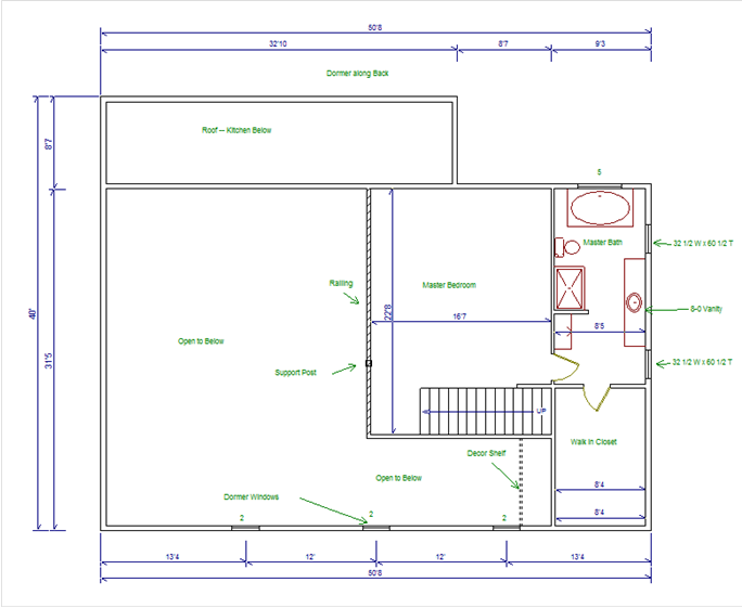
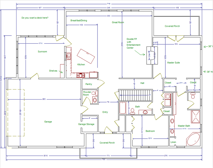
Here are a few more of our upcoming projects that started out as a customer drawn rough sketch……. Watch for these new homes in the weeks to come. |

|
Floor Plan Design Service Fee Schedule Please send your plan as a PDF file via E-mail Or Snail Mail Pay us thru Paypal
Note: Your payment will be made to Ozark Hardwood Flooring’s Paypal Account
|
|
NOTE: If you order the home from the plans we design ALL PLANNING SERVICES ARE REFUNDED BACK TO YOU !!! So your plan work is FREE !!! |
|
This home is now a reality -- Under construction in 2009. Check it out here. |
|
First Draft Plan up to 3000 SQFT and 2 Floors |
$150.00 |
|
|
Add for Basement |
$ 50.00 |
|
|
Over 3000 SQFT |
$250.00 |
|
|
First Revision |
FREE |
|
|
2nd and all later Revisions |
$50.00 each |
|
|
Kuhns Bros Prospect plan from our drawings With 2 Elevations |
$250.00 |
|